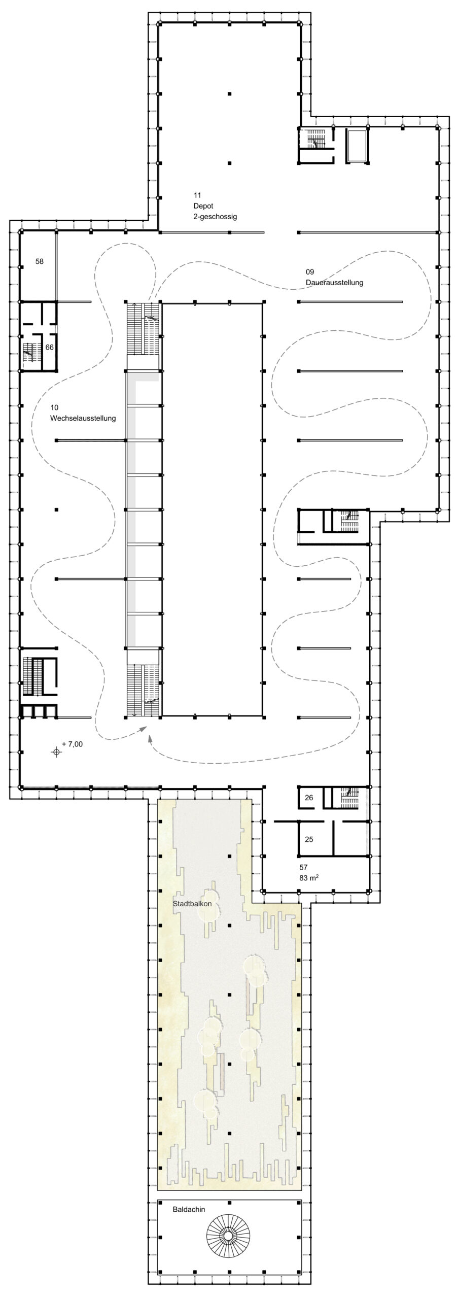
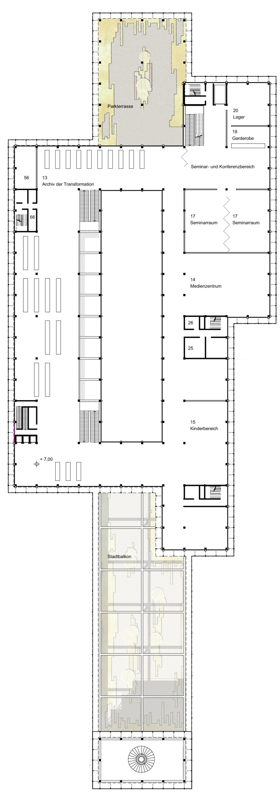
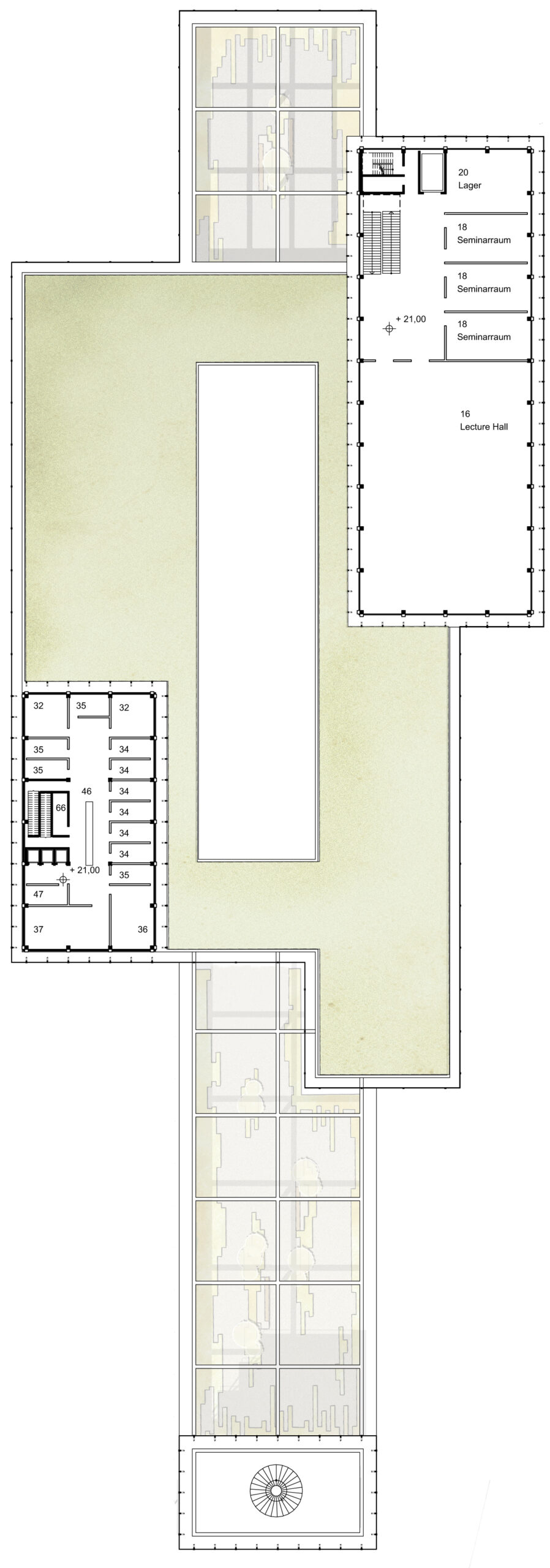
VOM STADTARCHIPEL UND UMBAU-QUARTIER
Quer über den Riebeckplatz spannt sich von Nord nach Süd ein grünes Stadtarchipel. Ausgehend von der Wahrnehmung in Sequenzen werden Besucher des neuen Zukunftszentrums bereits vor Erreichen des eigentlichen Ziels im umgebenden Stadtraum gestalterische Eingriffe erkennen, die die Neugier wecken.
Durch das spannungsreiche Anlagern der wichtigsten Funktionen entlang vorgegebener Wege aus Hochstraße und Stadtzugängen entsteht ein Zukunftsquartier eingebettet in vorhandenes Grün. Mit Respekt dem Bestehenden gegenüber versteht sich das neu Hinzugefügte als zurückhaltendes und dennoch eigenständiges Zeichen unserer Zeit.
Dabei wird die Prozesshaftigkeit zur gestalterischen Haltung. Der transformatorische Gedanke beginnt schon bei der Konstruktion und öffnet damit den Blick auf eine spätere Umnutzung. So entsteht kein Bauwerk für Jahrhunderte sondern ein raumbildendes Rohstofflager, welches zukünftige Generationen als resiliente Struktur zum Um- und Weiterbauen anregen soll oder bei Bedarf als Materialressource für neue Ideen zur Verfügung steht.













